PROPERTY FOR SALE

7A Orchard Place, Morningside, Whangarei

Walk To The CBD!

For sale by negotiation

If you’re seeking convenience close to the city, this beautifully refreshed home is an absolute must-see!

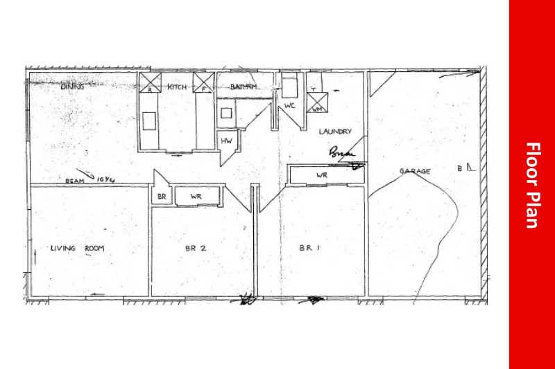
Currently configured as a three-bedroom brick unit, the third bedroom was created through an internal access garage conversion by a previous owner, offering valuable extra living or bedroom space. While the footprint remains unchanged, the area could easily be reinstated as an internal-access garage if preferred.

Immaculately presented, the home has been prepared for sale with an interior repaint, brand-new carpet, new drapes, and modern light fittings. The layout offers a spacious living area filled with natural light, a well-equipped open-plan kitchen and dining, a separate laundry, a separate toilet, and a tidy bathroom. A heat pump ensures year-round comfort, while the home’s warm northerly aspect adds to its inviting appeal.

Set on a cross lease title with a half share in 1069 sqm, this home forms part of a quiet block of two units, joined only by the garaging and tucked down a private ROW. This low-maintenance property enjoys peace and privacy, while the sunny outdoor space is ideal for growing veggies, relaxing, or firing up the BBQ. Off-street parking adds convenience and completes the picture.

Perfectly positioned just 1.6 km from Whangarei’s CBD, you’ll love the easy access to supermarkets, cafes, schools, and public transport. Whether you’re a first home buyer, downsizer, or investor, this property ticks all the boxes for comfort, location, and value.

Properties in this condition, this close to town, don’t last long – contact Louise today to arrange your viewing and make it yours!

Please Note: Some images have been virtually staged for visual presentation.

Property Details

  • Bedrooms: 2
  • Bathrooms: 1
  • Living areas: 1
  • Garaging: 2
  • Floor area: 90m²
  • Land area: 1069m² (1/2 share crosslease)
  • Sale by negotiation
  • Property files available on request

Location Map

Contact Agent


Louise Payne

Licensed REAA 2008

021 432 743

Email Louise

TOP